Проект «Полонез – 103 ВС»

Проект «Полонез – 103 ВС»
Характеристики
Площадь дома, м²
103
Количество санузлов
2
Выделенная бойлерная
1
Количество этажей
1
Количество спален
3
Стоимость готового дома
от
6400000
р.

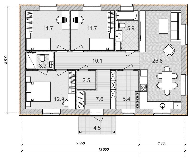
Проект компактного одноэтажного дома в классическом стиле со вторым светом .

Этот коттедж имеет максимально рациональную планировку, в которой есть все, что нужно современному человеку: большая кухня-гостиная, три полноценных спальни, 2 санузла, гардеробная, котельная и прихожая. Второй свет в кухне-гостиной визуально увеличивает помещение и добавляет атмосферу уюта.


* Конечная стоимость определяется после осмотра участка клиента.


Планировка

Популярные проекты

Проект «Грация – 104 ВС»
Проект «Грация – 104 ВС»
Площадь дома, м²
104
Количество санузлов
2
Количество спален
3
от
6800000
р.
Проект «Фристайл – 103»
Проект «Фристайл – 103»
Площадь дома, м²
103
Количество санузлов
2
Количество спален
3
от
6250000
р.
Проект «Фокстрот – 85»
Проект «Фокстрот – 85»
Площадь дома, м²
85
Количество санузлов
1
Количество спален
2
от
5950000
р.
Менеджер
Менеджер компании
Консультация специалиста
Мы свяжемся с вами в течение 5 минут
Менеджер
Менеджер компании
Оставить заявку
Мы свяжемся с вами в течение 5 минут
Менеджер
Менеджер компании
Заказать расчет
Мы свяжемся с вами в течение 5 минут