Проект «Фокстрот – 85 НЕО»

Проект «Фокстрот – 85 НЕО»
Характеристики
Площадь дома, м²
85
Количество санузлов
1
Количество этажей
1
Количество спален
2
Стоимость готового дома
от
6100000
р.

Очень практичный дом, в котором нет ничего лишнего. Лучшее соотношение цены и площади. 


Исполнение НЕО точно не оставит окружающих без внимания своей выразительной архитектурой.

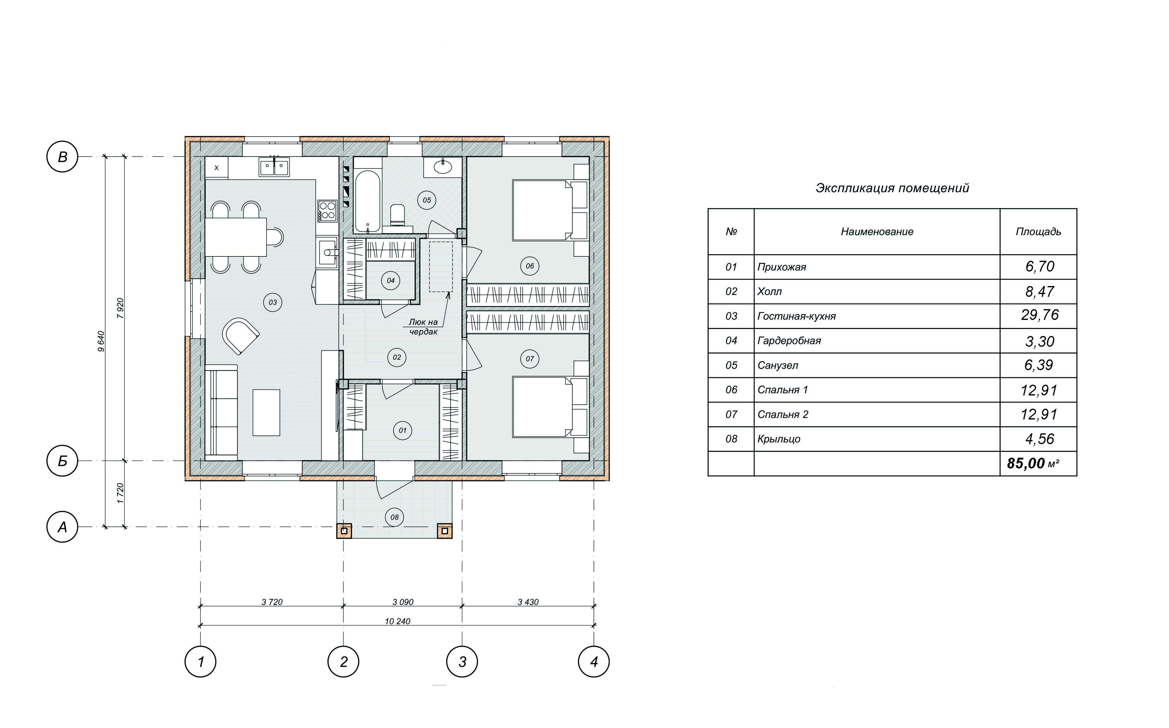
В этом коттедже есть все необходимое: просторная кухня-гостиная, которая по Вашему желанию может быть разделена на две смежные зоны, две  полноценных спальни и огромная ванная комната. Есть отдельная гардеробная комната или кладовая. 


* Конечная стоимость определяется после осмотра участка клиента.


Планировка

Популярные проекты

Проект «Фокстрот – 85»
Проект «Фокстрот – 85»
Площадь дома, м²
85
Количество санузлов
1
Количество спален
2
от
5950000
р.
Проект «Модерн – 102»
Проект «Модерн – 102»
Площадь дома, м²
102
Количество санузлов
1-2
Количество спален
3
от
6250000
р.
Проект «Фламенко - 107»
Проект «Фламенко - 107»
Хит продаж
Площадь дома, м²
107
Количество санузлов
2
Количество спален
3
от
6500000
р.
Менеджер
Менеджер компании
Консультация специалиста
Мы свяжемся с вами в течение 5 минут
Менеджер
Менеджер компании
Оставить заявку
Мы свяжемся с вами в течение 5 минут
Менеджер
Менеджер компании
Заказать расчет
Мы свяжемся с вами в течение 5 минут